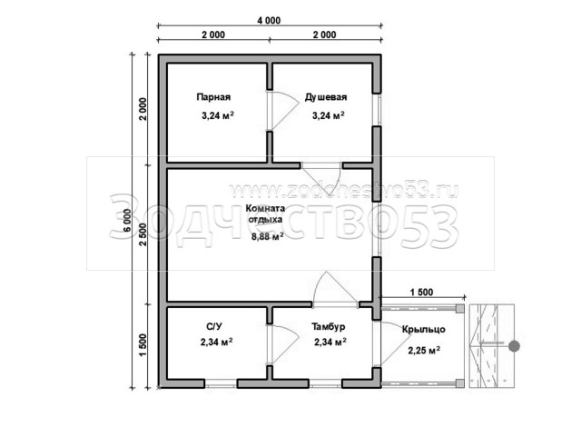
Цена бани «под ключ» (что такое «под ключ»?):
Профилированный брус 150×100
Профилированный брус 150×100:
855 000 руб.
Профилированный брус 150×150
Профилированный брус 150×150:
929 000 руб.
Профилированный брус 150×200
Профилированный брус 150×200:
По запросу
Цена бани «под усадку» (в чем разница от «под ключ»?):
Профилированный брус 150×100
Профилированный брус 150×100:
722 000 руб.
Профилированный брус 150×150
Профилированный брус 150×150:
811 000 руб.
Профилированный брус 150×200
Профилированный брус 150×200:
По запросу

- Стандартная комплектация
бани «под ключ» - Стандартная комплектация
бани «под усадку» - Дополнительные
услуги
| Высота сруба - 1 этаж, 16 рядов Высота сруба - 2 этаж |
2,10-2,20 м. 2,10 м. |
|||
| Обвязка бани брус естественной влажности, мм |
![]() |
150х100 | 150х100 | |
| Утеплитель между венцами | ![]() |
Джутовое полотно | ||
| Лаги. Шаг через 90 см. Брус естественной влажности,мм |
![]() |
100x150 | 100х150 | |
| Внутренние перегородки: профилированный брус (прямой) |
![]() |
100х150 | ||
| Черновой пол | ![]() |
Обрезная доска, мм 20х100 или 20х150 |
||
| Чистовой пол - 1 этаж | ![]() |
Шпунтованная доска 27 мм. | ||
| Чистовой пол - 2 этаж | ![]() |
Шпунтованная доска 27 мм. | ||
| Потолок - 1 этаж | ![]() |
Вагонка класса В | ||
| Стропильная система | ![]() |
Одноэтажная баня 40х100, двухэтажная 40х150 | ||
| Выгородка комнат | ![]() |
40x100 | ||
| Обрешетка | ![]() |
Обрезная доска естественной влажности 20х100 или 20х150 |
||
| Мансарда | ![]() |
Сухая вагонка класса В | ||
| Внутренние стены и перегородки - 2 этаж (мансарда) |
![]() |
Каркасно-щитовые | ||
| Фронтоны | ![]() |
Обшиваются сухой вагонкой | ||
| Высота фронтона | Одноэтажная баня - 1,2-1,5 м. Двухэтажная баня - 3,2-3,40 м. |
|||
| Толщина утепления (ISOVER или URSA) |
![]() |
Пол, потолок, перегородки - 50 мм | ||
| Парогидроизоляция | ![]() |
Пол, потолок, мансардный этаж - Наноизол "Б" |
||
| Кровля | ![]() |
Ондулин (красный, зеленый, коричневый) | ||
| Окна | ![]() |
Деревянные обналиченные. Двойное стекло. Размер - 1х1,2 м. |
||
| Межкомнатные двери | ![]() |
Без межкомнатных дверей, только проемы. | ||
| Парная | ![]() |
Обшивается вагонкой из осины с прокладкой из фольги | ||
| Полки | ![]() |
Полки из осины | ||
| Поддон | ![]() |
Не входит в стоимость | ||
| Моечная и комната отдыха | ![]() |
Перегородки из проф. бруса (прямой) стены не обшиваются вагонкой |
||
| Печь | ![]() |
Не входит в стоимость. Выбор печи | ||
| Лестница с резными балясинами | ![]() |
Одномаршевая или двухмаршевая, деревянная с резными балясинами |
||
| Плинтус | ![]() |
Входит в стоимость | ||
| Фундамент | ![]() |
Не входит в стоимость договора | ||
| Сборка бани | ![]() |
Баня и сруб - на гвозди, внутренняя отделка на оцинкованные гвозди | ||
| Доставка | ![]() |
До МКАД и КАД входит в стоимость. Расстояние сверх - 200 руб/км. |
||
| Высота сруба - 1 этаж, 16 рядов Высота сруба - 2 этаж |
2,10-2,20 м. 2,10 м. |
|||
| Обвязка бани брус естественной влажности, мм |
![]() |
150х100 | 150х100 | |
| Утеплитель между венцами | ![]() |
Джутовое полотно | ||
| Лаги. Шаг через 90 см. Брус естественной влажности,мм |
![]() |
100x150 | 100х150 | |
| Внутренние перегородки: профилированный брус (прямой) |
![]() |
100х150 | ||
| Стропильная система | ![]() |
Одноэтажная баня 40х100, двухэтажная 40х150 | ||
| Выгородка комнат | ![]() |
40x100 | ||
| Обрешетка | ![]() |
Обрезная доска естественной влажности 20х100 или 20х150 |
||
| Внутренние стены и перегородки - 2 этаж (мансарда) |
![]() |
Каркасно-щитовые | ||
| Фронтоны | ![]() |
Обшиваются сухой вагонкой | ||
| Высота фронтона | Одноэтажная баня - 1,2-1,5 м. Двухэтажная баня - 3,20-3,40 м. |
|||
| Парогидроизоляция | ![]() |
Пол, потолок, мансардный этаж - Наноизол "Б" |
||
| Кровля | ![]() |
Ондулин (красный, зеленый, коричневый) | ||
| Парная | ![]() |
Не общивается | ||
| Поддон | ![]() |
Не входит в стоимость | ||
| Моечная и комната отдыха | ![]() |
Перегородки из проф. бруса (прямой) стены не обшиваются вагонкой |
||
| Печь | ![]() |
Не входит в стоимость. Выбор печи | ||
| Фундамент | ![]() |
Не входит в стоимость договора | ||
| Сборка бани | ![]() |
Баня и сруб - на гвозди, внутренняя отделка на оцинкованные гвозди | ||
| Доставка | ![]() |
До МКАД и КАД входит в стоимость. Расстояние сверх - 200 руб/км. |
||
Заказ проекта
Оформить заказ Вы можете по телефону +7 (921) 202-42-37
или заполнив форму ниже:







































































































