Жаклин. Каркасный дом 6х8 м.

Сообщение об ошибке

  • Notice: Use of undefined constant CSS_LIBRARY - assumed 'CSS_LIBRARY' в функции field_formatter_image_gallery_attach_assets() (строка 231 в файле /var/www/zodchestvo/data/www/zodchestvo53.ru/sites/all/modules/field_formatter_image_gallery/field_formatter_image_gallery.module).
  • Notice: Use of undefined constant CSS_LIBRARY - assumed 'CSS_LIBRARY' в функции field_formatter_image_gallery_attach_assets() (строка 236 в файле /var/www/zodchestvo/data/www/zodchestvo53.ru/sites/all/modules/field_formatter_image_gallery/field_formatter_image_gallery.module).
  • Notice: Use of undefined constant CSS_LIBRARY - assumed 'CSS_LIBRARY' в функции field_formatter_image_gallery_attach_assets() (строка 238 в файле /var/www/zodchestvo/data/www/zodchestvo53.ru/sites/all/modules/field_formatter_image_gallery/field_formatter_image_gallery.module).
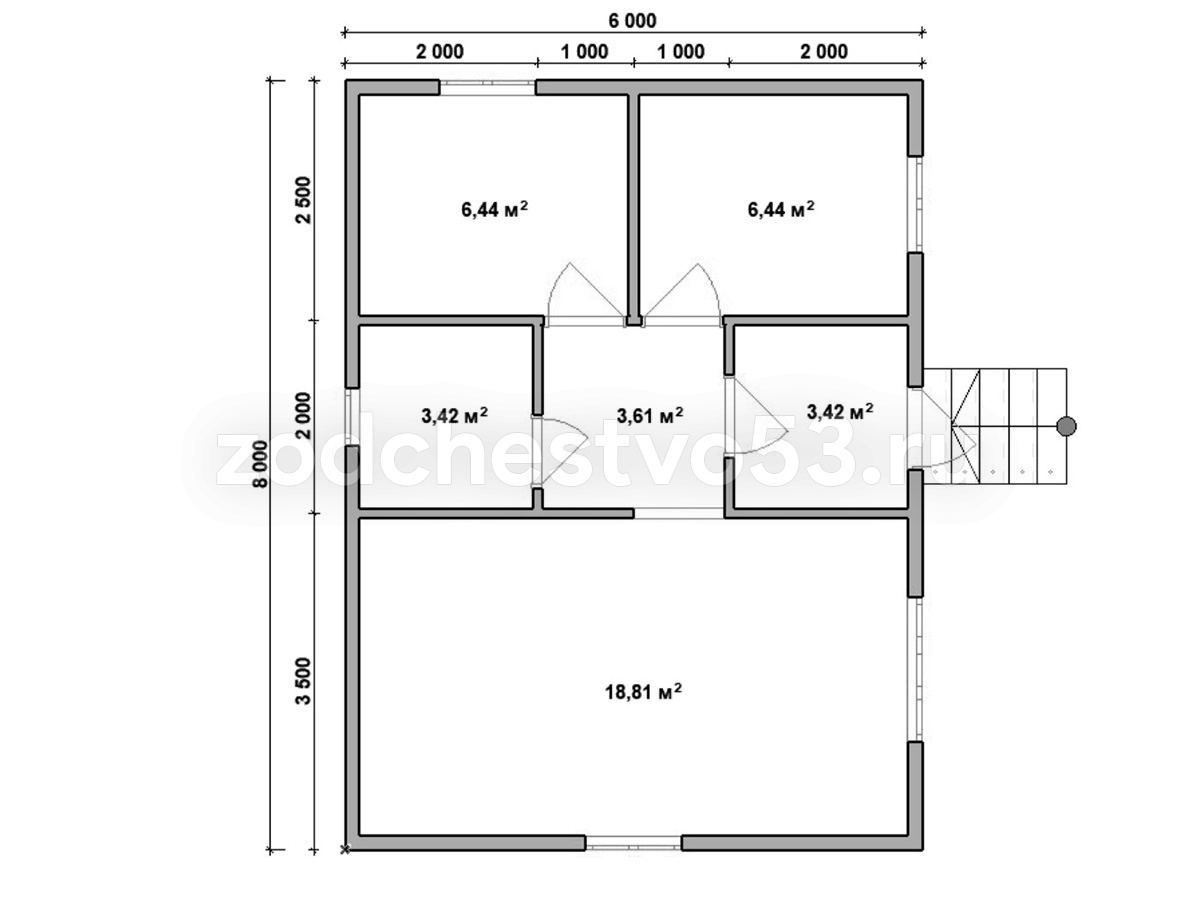
Размер
6х8 м.
Этажность
одноэтажный
Комплектация «Под ключ»
Толщина стены и утеплителя 150 мм.
1 360 000 руб.
Комплектация «Под ключ»
Толщина стены и утеплителя 200 мм.
1 420 000 руб.
Вы можете бесплатно изменить планировку у проекта так, как удобно именно вам. Хотите — уберите лишнюю стену или добавьте новую, поменяйте назначение комнат или добавьте больше окон для света. Наши специалисты помогут превратить ваши идеи в готовый индивидуальный проект. Свяжитесь с нами чтобы доработать проект под ваши пожелания.
Описание комплектаций
  Толщина стены 150 мм. Толщина стены 200 мм.
Обвязка дома 1 венец 150×150 (брус камерной сушки) 150×150 (брус камерной сушки)
Обвязка 2 венец 50×150 (доска камерной сушки) 40×200 (доска камерной сушки)
Высота 1 этажа 2.70 +/- 5 см,
Высота 2 этажа (мансарды) 2.40 см
Толщина стен, стойки через 60 см 40×150 (доска камерной сушки) 40×200 (доска камерной сушки)
Лаги 50×150 через каждые 60 см 40×200 через каждые 60 см
Перегородки ( 1 и 2 этажей согласно проекту) 40×100 (доска камерной сушки)
Черновой пол ОСБ-9 мм. Швы и стыки пропенены
Чистовой пол (1 и 2 этажей) Шпунтованная доска 36 мм. (количество этажей согласно проекту)
Потолок ЕвроВагонка 12.5 мм класса В (количество этажей согласно проекту)
Межэтажное перекрытие 40×150, шаг 60 см, ( камерной сушки) 40×200, шаг 60 см, ( камерной сушки)
Стропильная система 1 и мансардного домов 40×150, шаг 60 см, ( камерной сушки) 40×150, шаг 60 см, ( камерной сушки)
Стропильная система 1.5 этажного дома 40×150, шаг 60 см, ( камерной сушки) 40×200, шаг 60 см, ( камерной сушки)
Выгородка комнаты 2 этажа (согласно проекта) 40×150, шаг 60 см, ( камерной сушки) 40×200, шаг 60 см, ( камерной сушки)
Обрешетка Обрезная доска камерной сушки 20×100, шаг 20-25 см.
Мансарда, (стены) Сухая Евровагонка 12,5 мм класса В
Наружные стены 1 и 2 этажей согласно проекту Обшиваются сухой имитацией бруса 16×140
Внутренние стены и перегородки (согласно проекту) Сухая Евровагонка 12,5 мм класса В
Фронтоны Обшиваются сухой имитацией бруса 16×140
Высота фронтона Одноэтажный дом 2,0 м. Двухэтажный дом 3,50 м.
Толщина утепления Полы — 150 мм, потолки 1 и 2 этажей — 150 мм (Кнауф рулонный или аналоги) Полы — 200 мм, потолки 1 и 2 этажей — 200 мм (Кнауф рулонный или аналоги)
Толщина утепления стен 1и 2 этажей согласно проекту 150 мм, плиты 200 мм, плиты
Толщина утепления перегородок 1 и 2 этажей (мансарды) 100 мм, плиты 100 мм, плиты
Пароизоляция Полы, потолок 2 этажа, мансардный этаж — Наноизол Про (или его аналоги) класса В (с проклейкой скотчем)
Ветрозащита стен 1 и 2 этажаей, фронтонов Наноизол Про (или его аналоги) класса А
Гидро — ветрозащитная мембраны кровли Наноизол Про (или его аналоги) АМ или SD
Кровля Ондулин (красный, зеленый, коричневый — на выбор)
Окна ПВХ Двухкамерные стеклопакеты (размеры согласно проекту)
Входная дверь Металлическая, производство Россия
Двери Без межкомнатных дверей, только проемы
Лестница комплект (тетива, ступени) Одномаршевая или двухмаршевая, с точеным балясинами, стартовыми столбами и перилами (согласно проекту)
Плинтус Входит в стоимость
Контр -рейка Фасад,стены,потолки и 2 этаж( кроме перегородок)
Фундамент Не входит в стоимость договора
Поднбесники, Лобовые и углы Сухая Евровагонка 12,5 мм класса В
Доставка До МКАД и КАД — входит в стоимость. Перепробег — 200 руб./км.
Свайно-винтовой фундамент. Расчет свай по проекту дома или бани. По запросу
Дополнительный венец из бруса 150×150 мм, за 1 пог. метр. По запросу
Дополнительный венец из бруса 150×200 мм, за 1 пог. метр. По запросу
Монтаж углов «в тёплый угол» В подарок
Сборка сруба на деревянные нагеля В подарок
Замена половой доски на КвикДек По запросу
Дверь банная стеклянная По запросу
Металлическая входная дверь (Россия) с установкой По запросу
Металлическая входная дверь с терморазрывом (Россия)с установкой По запросу
ПВХ дверь, двухкамерная входная с личиной По запросу
Замена ондулина на металлочерепицу, с работой. Цвет на выбор По запросу
Установка Водосточной системы Дёке Премиум По запросу
Установка Снегозадержателей Борг По запросу
Банные печи Открыть
Туалет (каркасно-щитовой) 1×1,2 м. + 4 блока По запросу
Бытовка (каркасно-щитовая) 2×3 м. для проживания бригады + 4 блока. Остается у заказчика По запросу
Аренда генератора (бензин заказчика) По запросу
Доставка 450 км входит в стоимость проекта .Перепробег . Перепробег — 200 руб. за 1 км.
Бесплатный Расчет
вашего проекта
Если вы не смогли найти подходящий проект на нашем сайте, или у вас есть свой готовый проект или эскиз, Вы можете прислать его нам на бесплатный расчет стоимости строительства.

Заказ проекта

Оформить заказ Вы можете по телефону +7 (921) 202-42-37 
или заполнив форму ниже:

Бесплатный расчет проекта

Если Вы загружаете свой проект, не забудьте нажать кнопку «Закачать», иначе мы не получим файл с проектом.
Максимальный размер файла: 32 МБ.
Разрешённые типы файлов: gif jpg jpeg png bmp eps tif pict psd rtf pdf doc xls xlsx.
Максимальный размер файла: 20 МБ.
Разрешённые типы файлов: gif jpg jpeg png txt rtf html pdf doc docx ppt pptx xls xlsx xml.

Консультация

Наш сайт использует куки. Продолжая им пользоваться, вы соглашаетесь на обработку персональных данных в соответствии с политикой конфиденциальности.