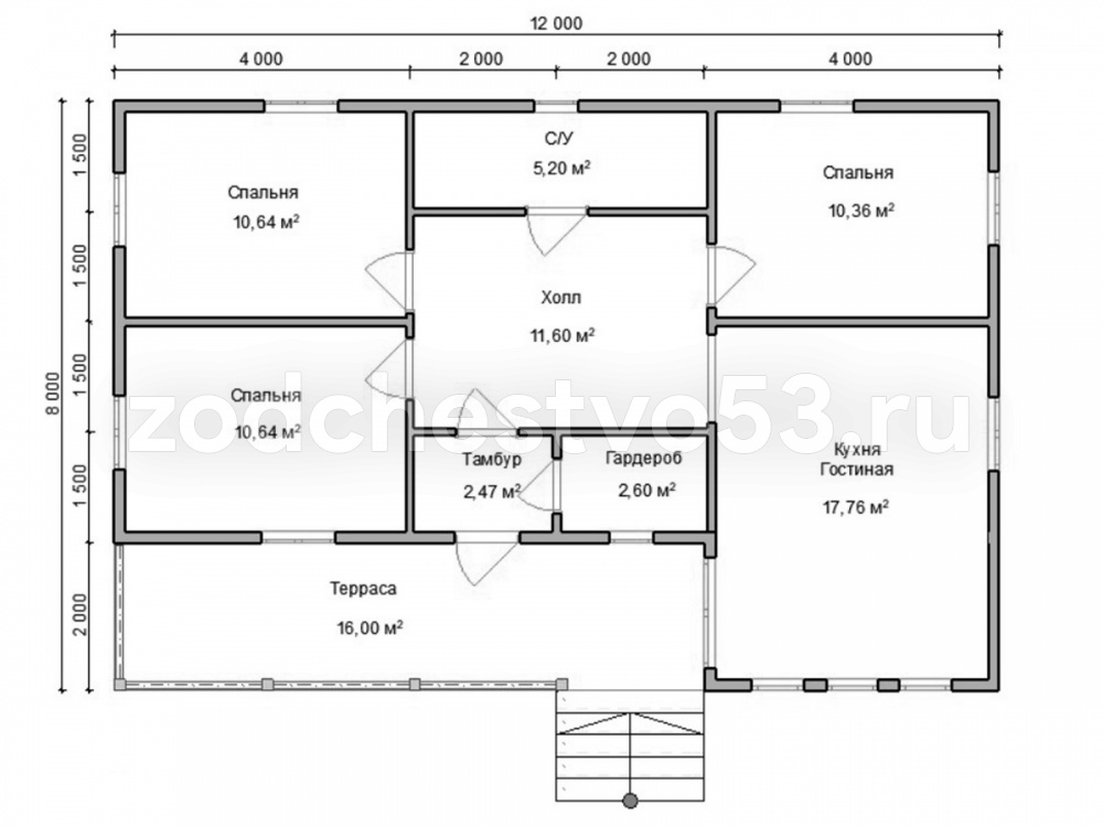
Нижний Новгород. Каркасный дом 8х12 м.

Сообщение об ошибке

  • Notice: Use of undefined constant CSS_LIBRARY - assumed 'CSS_LIBRARY' в функции field_formatter_image_gallery_attach_assets() (строка 231 в файле /var/www/zodchestvo/data/www/zodchestvo53.ru/sites/all/modules/field_formatter_image_gallery/field_formatter_image_gallery.module).
  • Notice: Use of undefined constant CSS_LIBRARY - assumed 'CSS_LIBRARY' в функции field_formatter_image_gallery_attach_assets() (строка 236 в файле /var/www/zodchestvo/data/www/zodchestvo53.ru/sites/all/modules/field_formatter_image_gallery/field_formatter_image_gallery.module).
  • Notice: Use of undefined constant CSS_LIBRARY - assumed 'CSS_LIBRARY' в функции field_formatter_image_gallery_attach_assets() (строка 238 в файле /var/www/zodchestvo/data/www/zodchestvo53.ru/sites/all/modules/field_formatter_image_gallery/field_formatter_image_gallery.module).
Размер
8х12 м.
Этажность
одноэтажный
Комплектация «Под ключ»
Толщина стены и утеплителя 150 мм.
По запросу
Комплектация «Под ключ»
Толщина стены и утеплителя 200 мм.
По запросу
Вы можете бесплатно изменить планировку у проекта так, как удобно именно вам. Хотите — уберите лишнюю стену или добавьте новую, поменяйте назначение комнат или добавьте больше окон для света. Наши специалисты помогут превратить ваши идеи в готовый индивидуальный проект. Свяжитесь с нами чтобы доработать проект под ваши пожелания.
Описание комплектаций
  Толщина стены 150 мм. Толщина стены 200 мм.
Обвязка дома 1 венец 150×150 (брус камерной сушки) 150×150 (брус камерной сушки)
Обвязка 2 венец 50×150 (доска камерной сушки) 40×200 (доска камерной сушки)
Высота 1 этажа 2.70 +/- 5 см,
Толщина стен, стойки через 60 см 40×150 (доска камерной сушки) 40×200 (доска камерной сушки)
Лаги 50×150 через каждые 60 см 40×200 через каждые 60 см
Перегородки ( согласно проекту) 40×100 (доска камерной сушки)
Черновой пол ОСБ-9 мм. Швы и стыки пропенены
Чистовой пол Шпунтованная доска 36 мм. ( согласно проекту)
Потолок ( прямой или по скатам ) ЕвроВагонка 12.5 мм класса В ( согласно проекту)
Межэтажное перекрытие 40×150, шаг 60 см, ( камерной сушки) 40×200, шаг 60 см, ( камерной сушки)
Стропильная система 40×150, шаг 60 см, ( камерной сушки) 40×150, шаг 60 см, ( камерной сушки)
Обрешетка Обрезная доска камерной сушки 20×100, шаг 20-25 см.
Наружные стены Обшиваются сухой имитацией бруса 16×140
Внутренние стены и перегородки (согласно проекту) Сухая Евровагонка 12,5 мм класса В
Фронтоны Обшиваются сухой имитацией бруса 16×140
Высота фронтона ( разноуровневые) 1.20 −2.0 м
Толщина утепления Полы — 150 мм, потолок ( прямой либо по скату) — 150 мм (Кнауф рулонный или аналоги)
Полы — 200 мм, потолок ( прямой или по скату)- 200 мм (Кнауф рулонный или аналоги)
Толщина утепления стен 150 мм, плиты 200 мм, плиты
Контр — рейка 20×50 , фасад, стены внутри и потолок (кроме перегородок) 20×50 , фасад, стены внутри и потолок (кроме перегородок)
Толщина утепления перегородок 100 мм, плиты 100 мм, плиты
Пароизоляция (внутри) Полы, потолок и перегородки — Наноизол Про (или его аналоги) класса В (с проклейкой скотчем)
Ветрозащита стен, фронтонов Наноизол Про (или его аналоги) класса А
Гидро — ветрозащитная мембраны кровли Наноизол Про (или его аналоги) АМ или SD
Кровля Ондулин (красный, зеленый, коричневый — на выбор) + контр — рейка 30×40
Окна ПВХ Двухкамерные стеклопакеты (размеры согласно проекту)
Входная дверь Металлическая, производство Россия
Двери Без межкомнатных дверей, только проемы
Плинтус Входит в стоимость
Фундамент Не входит в стоимость договора
Поднебесники, Лобовые и углы Сухая Евровагонка 12,5 мм класса В
Доставка До МКАД и КАД — входит в стоимость. Перепробег — 200 руб./км.
Свайно-винтовой фундамент. Расчет свай по проекту дома или бани. По запросу
Дополнительный венец из бруса 150×150 мм, за 1 пог. метр. По запросу
Дополнительный венец из бруса 150×200 мм, за 1 пог. метр. По запросу
Монтаж углов «в тёплый угол» В подарок
Сборка сруба на деревянные нагеля В подарок
Замена половой доски на КвикДек По запросу
Дверь банная стеклянная По запросу
Металлическая входная дверь (Россия) с установкой По запросу
Металлическая входная дверь с терморазрывом (Россия)с установкой По запросу
ПВХ дверь, двухкамерная входная с личиной По запросу
Замена ондулина на металлочерепицу, с работой. Цвет на выбор По запросу
Установка Водосточной системы Дёке Премиум По запросу
Установка Снегозадержателей Борг По запросу
Банные печи Открыть
Туалет (каркасно-щитовой) 1×1,2 м. + 4 блока По запросу
Бытовка (каркасно-щитовая) 2×3 м. для проживания бригады + 4 блока. Остается у заказчика По запросу
Аренда генератора (бензин заказчика) По запросу
Доставка 450 км входит в стоимость проекта .Перепробег . Перепробег — 200 руб. за 1 км.
Бесплатный Расчет
вашего проекта
Если вы не смогли найти подходящий проект на нашем сайте, или у вас есть свой готовый проект или эскиз, Вы можете прислать его нам на бесплатный расчет стоимости строительства.

Бесплатный расчет проекта

Если Вы загружаете свой проект, не забудьте нажать кнопку «Закачать», иначе мы не получим файл с проектом.
Максимальный размер файла: 32 МБ.
Разрешённые типы файлов: gif jpg jpeg png bmp eps tif pict psd rtf pdf doc xls xlsx.
Максимальный размер файла: 20 МБ.
Разрешённые типы файлов: gif jpg jpeg png txt rtf html pdf doc docx ppt pptx xls xlsx xml.

Консультация

Наш сайт использует куки. Продолжая им пользоваться, вы соглашаетесь на обработку персональных данных в соответствии с политикой конфиденциальности.