О технологии
Наши работы
Посмотрите другие фото
готовых домов, бань,
печей, лестниц и
бытовок.

 

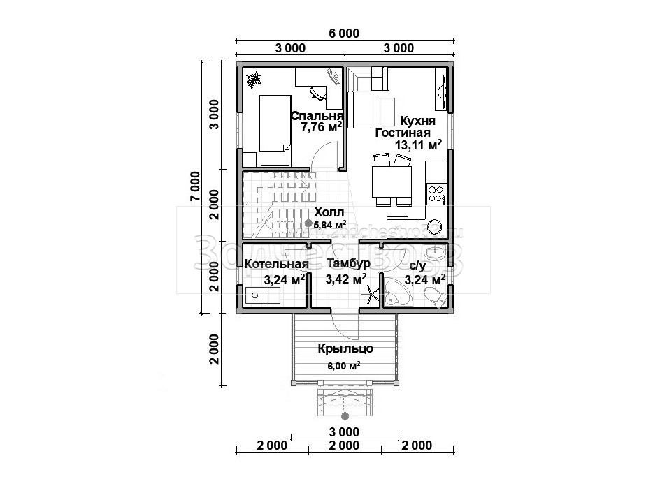
Проект Д-39. Дом из бруса 6х9 м.

Цена дома «под ключ» (что такое «под ключ»?):

Профилированный брус 150×100

Профилированный брус 150×100: 
1 829 000 руб.

Профилированный брус 150×150

Профилированный брус 150×150: 
2 161 000 руб.

Профилированный брус 150×200

Профилированный брус 150×200: 
2 572 000 руб.
Цена дома «под усадку» (в чем разница от «под ключ»?):

Профилированный брус 150×100

Профилированный брус 150×100: 
1 410 000 руб.

Профилированный брус 150×150

Профилированный брус 150×150: 
1 680 000 руб.

Профилированный брус 150×200

Профилированный брус 150×200: 
2 093 000 руб.
Сечение профилированного бруса
и толщина стены, мм
150х100 150х150 150х200
Высота сруба - 1 этаж, 17 рядов
Высота сруба - 2 этаж
2,32 - 2,38 м.
2,20 - 2,25 м.
Обвязка дома:
брус естественной влажности, мм
150х100 150х150 150х200
Утеплитель между венцами Джутовое полотно
Лаги. Шаг через каждые 90 см. 100x150 100x150 100x150
Внутренние перегородки:
профилированный брус (прямой)
100х150
Черновой пол Обрезная доска, мм
20х100 или 20х150
Чистовой пол - 1 этаж Шпунтованная доска 27 мм.
Чистовой пол - 2 этаж Шпунтованная доска 27-28 мм.
Потолок - 1 этаж Вагонка класса В
Стропильная система 40x150 40x150 40x150
Обрешетка Обрезная доска естественной влажности
20х100 или 20х150
Мансарда Сухая вагонка класса В
Выгородка комнат 2-го этажа 40x100
Балки межэтажного перекрытия 40x150, шаг 50 см.
Внутренние стены и
перегородки - 2 этаж (мансарда)
Каркасно-щитовые
Фронтоны Обшиваются сухой вагонкой
Высота фронтона Одноэтажный дом 1,50-1,70 м.
Двухэтажный дом 3,20 - 3,40 м.
Толщина утепления
(ISOVER или URSA)
Полы - 50 мм, перекрытия 50 мм,
мансарда - 50 мм
Парогидроизоляция Пол, потолок,
мансардный этаж - Наноизол "Б"
Кровля Ондулин (красный, зеленый, коричневый)
Окна Деревянные обналиченные.
Двойное стекло. Размер - 1х1,2 м.
Двери Без межкомнатных дверей, только проемы
Лестница с резными балясинами Одномаршевая или двухмаршевая,
деревянная с резными балясинами
Плинтус Входит в стоимость
Фундамент Не входит в стоимость договора
Сборка дома Дом и сруб - на гвозди, внутренняя отделка на оцинкованные гвозди
Доставка До МКАД и КАД - входит в стоимость. Перепробег – 200 руб./км.
Сечение профилированного бруса
и толщина стены, мм
150х100 150х150 150х200
Высота сруба - 1 этаж, 17 рядов
Высота сруба - 2 этаж
2,30 м.
2,20 м.
Обвязка дома:
брус естественной влажности, мм
150х100 150х150 150х200
Утеплитель между венцами Джутовое полотно
Лаги. Шаг через каждые 90 см. 100x150 100x150 100x150
Внутренние перегородки:
профилированный брус (прямой)
100х150
Черновой пол Обрезная доска, мм
20х100 или 20х150
Потолок Без отделки
Стропильная система 40x150 40x150 40x150
Обрешетка Обрезная доска 20х100 или 20х150
Мансарда Без отделки
Выгородка комнат 2-го этажа 40x100
Балки межэтажного перекрытия 40x150, шаг 50 см.
Фронтоны Обшиваются сухой вагонкой
Высота фронтона Одноэтажный дом 1,50-1,70 м.
Двухэтажный дом 3,20 - 3,40 м.
Парогидроизоляция Только крыша
Утепление Нет
Кровля Ондулин (красный, зеленый, коричневый)
Окна Нет
Двери Нет
Лестница с резными балясинами Нет
Плинтус Нет
Фундамент Не входит в стоимость договора
Сборка дома На гвозди
Доставка До МКАД и КАД - входит в стоимость. Перепробег – 200 руб./км.

Свайно-винтовой фундамент.
Расчет свай по проекту дома или бани.
Подробнее о фундаментах

По запросу

Дополнительный венец из бруса 100х150 мм, за 1 пог. метр.
Дополнительный венец из бруса 150х150 мм, за 1 пог. метр.
Дополнительный венец из бруса 150х200 мм, за 1 пог. метр.

250 руб.
350 руб.
400 руб.

Дополнительная перегородка из проф. бруса 150х100 мм.
Дополнительная перегородка из проф. бруса 150х150 мм.
Дополнительная перегородка из проф. бруса 150х200 мм.

1500 руб. кв.м
1800 руб. кв.м
2100 руб. кв.м

Монтаж углов «в тёплый угол»
Подробнее о видах углов

6000 руб.
за 1 угол

Сборка сруба на деревянные нагеля
Подробнее о деревянных нагелях

60 руб.
за 1 пог. метр

Выпиливание роек для рам, 1 проем
Выпиливание роек для дверей, 1 проем

2000 руб.
2500 руб.

Ройки на окна на металлический уголок, 1 проем
Ройки на двери на металлический уголок, 1 проем

2500 руб.
3000 руб.

Дополнительное деревянное окно 1х1,2 м.,
с установкой

4500 руб.

Дополнительное деревянное окно 1,5х1,2 м.,
с 1 открывающейся створкой (с установкой)

7000 руб.

Дополнительное деревянное окно 1,5х1,2 м.,
с 2 открывающимися створками (с установкой)

8000 руб.

Оконный блок 0,5х0,5 м.

2500 руб.

Замена окон на пластиковые 0,6х0,6 м.
с поворотно-откидной фурнитурой, с установкой

4500 руб./шт. (однокамерное)
5000 руб./шт. (двухкамерное)

Замена окон на пластиковые 0,9х1,2 м.
с поворотно-откидной фурнитурой, с установкой

9000 руб./шт. (однокамерное)
9500 руб./шт. (двухкамерное)

Замена окон на пластиковые 1х1,2 м.
с поворотно-откидной фурнитурой, с установкой

9500 руб./шт. (однокамерное)
10000 руб./шт. (двухкамерное)

Замена окон на пластиковые 1,5х1,2 м.
с поворотно-откидной фурнитурой, с установкой

11000 руб./шт. (однокамерное)
12000 руб./шт. (двухкамерное)

Замена половой доски на шпунтованную, тощиной 36 мм.

400 руб.
за кв. м.

Дополнительное утепление - 50 мм

150 руб.
за кв. м.

Дверь банная стеклянная

12500 руб.

Металлическая входная дверь (Россия) с установкой

15 000 руб

Дополнительная парогидроизоляция (изоспан)

140 руб.
за 1 кв.м.

Контробрешетка под металлочерепицу

Обсчет
по проекту

Замена ондулина на металлочерепицу, с работой. Цвет на выбор

По
запросу

Обработка стен Пинотексом заказчика

250 руб.
за 1 кв.м.

Двойная обвязка из бруса 100х150
Двойная обвязка из бруса 150х150
Двойная обвязка из бруса 150х200

150 руб. п.м.
200 руб. п.м.
250 руб. п.м.

Фронтоны из проф. бруса 100х150, за 1 погонный метр
Фронтоны из проф. бруса 150х150, за 1 погонный метр
Фронтоны из проф. бруса 150х200, за 1 погонный метр

250 руб.
350 руб.
450 руб.

Матица для усиления потолочных балок 100х150
Матица для усиления потолочных балок 150х150
Матица для усиления потолочных балок 150х200

250 руб. п.м.
300 руб. п.м.
450 руб. п.м.

Замена прямой крыши на ломанную

40000 руб.

Отделка фронтонов и стен блокхаусом.
Расчет по проекту

1800 р. кв.м.

Обработка огнебиозащитой (нижний венец, лаги, черновой пол)

8000 руб.

Крыльцо с балясинами 1х1,5 м.

18000 руб.

Терраса открытого типа 6х2

96000 руб.

Банные печи

Открыть

Набор для бани: стол 1,5х0,7 и 2 скамьи 1,5х0,35

9800 руб.

Туалет (каркасно-щитовой) 1х1,2 м. + 4 блока

15000 руб.

Бытовка (каркасно-щитовая) 2х3 м. для проживания бригады + 4 блока. Остается у заказчика

30000 руб.

Козырёк над входом из полипропилена

10000 руб.

Аренда генератора (бензин заказчика)

20000 руб.

Доставка до МКАД и КАД входят в стоимость проекта. Сверх лимита.

200 руб.
за 1 км.

Заказ проекта

Оформить заказ Вы можете по телефону +7 (921) 202-42-37 
или заполнив форму ниже: