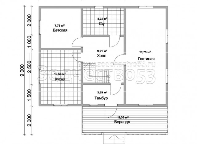
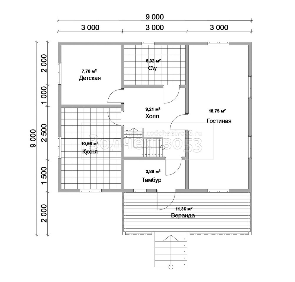
Толщина стены и утеплителя 100 мм.
Толщина стены и утеплителя 150 мм.
Толщина стены и утеплителя 200 мм.
|
Толщина стены и утеплителя |
|
|
|
Основание и обвязка - двойная (Обработаны огнебиозащитой) |
|
|
|
Черновые полы |
|
|
|
Каркасы стен, стойки через 58 см. |
|
|
|
Лаги, через 58 см. |
|
|
|
Полы, 1 этаж. |
|
|
|
Полы, 2 этаж. |
|
|
|
Перегородки (стойки) через 58 см. |
|
|
|
Утепление (пол, потолок стены 1-го этажа). Пол, потолок - Кнауф или Изовер. Стены и перегородки - KNAUF Aquastatik TS 037 плитный. По запросу возможен расчет для Роквулл Лайт Батс |
|
|
|
Утепление мансарды (Кнауф или Изовер) |
|
|
|
Двойная парогидроизоляция (пол, потолок, каркасы первого и второго этажа, стропильная система) |
|
|
|
Высота 1 этажа |
|
|
|
Высота 2 этажа |
|
|
|
Балки межэтажного перекрытия, через 58 см. |
|
|
|
Внутренняя отделка |
|
|
|
Крыша (стропильная система) |
|
|
|
Выгородка комнат (утепление + парогидроизоляция) |
|
|
|
Фронтоны (высота 3 - 3,2 м.) |
|
|
|
Обрешетка крыши |
|
|
|
Кровля |
|
|
|
Окна: 1х1,2 м., 0,6х1,2 м., 0,6х0,6 м. (по проекту) |
|
|
|
Входная дверь |
|
|
|
Межкомнатные двери |
|
|
|
Внешняя отделка |
|
|
|
Поднебесники, лобовые и углы |
|
|
|
Лестница |
|
|
|
Тетива лестницы |
|
|
|
Ступени |
|
|
|
Отделка на гвозди |
|
|
|
Плинтус |
|
|
|
Фундамент |
|
|
|
Доставка |
|
|
|
Сборка дома |
|



















































































