О технологии
Наши работы
Посмотрите другие фото
готовых домов, бань,
печей, лестниц и
бытовок.

 

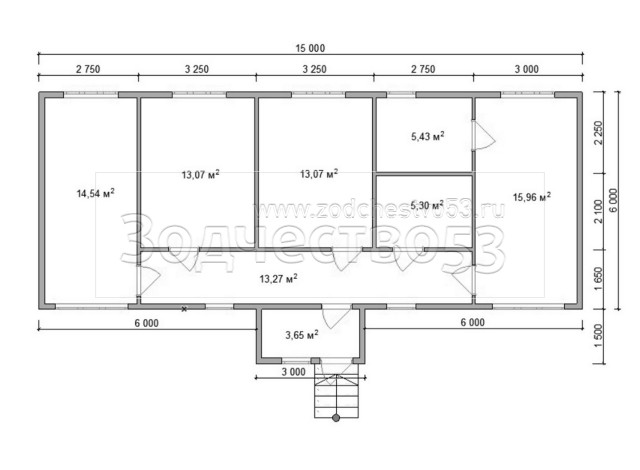
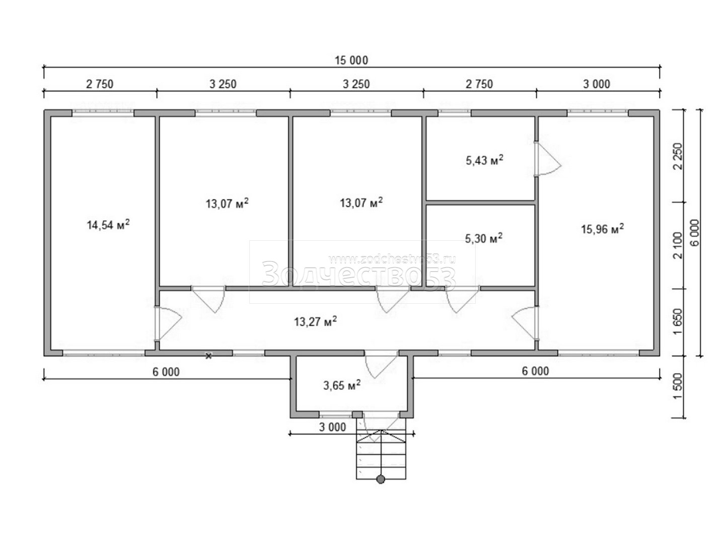
Земфира. Каркасный дом 15х6 м.

Цена каркасного дома

Толщина стены и утеплителя 100 мм.

Толщина стены и утеплителя 100 мм.: 
По запросу

Толщина стены и утеплителя 150 мм.

Толщина стены и утеплителя 150 мм.: 
По запросу

Толщина стены и утеплителя 200 мм.

Толщина стены и утеплителя 200 мм.: 
По запросу

Стандартная комплектация элитного каркасного дома

Толщина стены и утеплителя

  • 100 мм

  • 150 мм

  • 200 мм

Основание и обвязка - двойная (Обработаны огнебиозащитой)

  • Первый ряд - 100х150. Второй ряд - 50х150

  • Первый ряд - 150х150. Второй ряд - 40х150

  • Первый ряд - 150х150. Второй ряд - 40х200

Черновые полы

  • 20х100 или 20х150

Каркасы стен, стойки через 58 см. (Камерной сушки)

  • 40х100

  • 40х150

  • 40х200

Лаги, через 58 см. (Обработаны огнебиозащитой)

  • 50х150

  • 50х150

  • 40х200

Полы, 1 этаж.

  • 36 мм.

Полы, 2 этаж.

  • 36 мм.

Перегородки (стойки) через 58 см. (Камерной сушки)

  • 40х100

Утепление (пол, потолок стены 1-го этажа). Пол, потолок - Кнауф или Изовер. Стены и перегородки - KNAUF Aquastatik TS 037 плитный. По запросу возможен расчет для Роквулл Лайт Батс

  • 100 мм.

  • 150 мм.

  • 200 мм.

Утепление мансарды (Кнауф или Изовер)

  • 100 мм.

  • 150 мм.

  • 200 мм.

Двойная парогидроизоляция (пол, потолок, каркасы первого и второго этажа, стропильная система)

  • Наноизол "А", Наноизол "Б"

Высота 1 этажа

  • 2,70 м.

Высота 2 этажа

  • 2,40 м.

Балки межэтажного перекрытия, через 58 см. (камерной сушки)

  • 40х100

  • 40х150

  • 40х200

Внутренняя отделка

  • Вагонка класса "Б" 12,5-14 мм. камерной сушки

Крыша (стропильная система)

  • 40х150

Выгородка комнат (утепление + парогидроизоляция)

  • 40х100

  • 40х150

  • 40х200

Фронтоны (высота 3 - 3,5 м.)

  • Имитация бруса 16х140 (камерной сушки) + контр-рейка 20х50. Блокхаус, OSB, Сайдинг - рассчитывается индивидуально

Обрешетка крыши

  • Обрезная доска 20х100 или 20х150 (естественной влажности)

Кровля

  • Ондулин (цвет на выбор)

Окна: 1,0х1,2 м., 0,6х1,2 м., 0,6х0,6 м., 1,5х1,2 м. (по проекту)

  • ПВХ, двухкамерный стеклопакет

Входная дверь

  • Металлическая, либо ПВХ (по проекту)

Межкомнатные двери

  • Без межкомнатных дверей, только проемы

Внешняя отделка

  • Имитация бруса 16х140 (камерной сушки) + контр-рейка 20х50. Блокхаус, OSB, Сайдинг - рассчитывается индивидуально

Поднебесники, лобовые и углы

  • Подшиваются вагонкой класса В

Лестница

  • С перилами, с точёными балясинами и стартовыми столбами. Одномаршевая и двухмаршевая (по проекту)

Тетива лестницы

  • 70х150 (Строганая доска)

Ступени

  • 40х200х900

Отделка на гвозди

  • Каркасы на гвозди. Внутренняя и внешняя отделка - на оцинкованные гвозди

Плинтус

  • Входит в стоимость

Фундамент

  • Не входит в стоимость договора

Доставка

  • До МКАД и КАД - входит в стоимость. Перепробег – 200 руб./км.

Сборка дома

  • Входит в стоимость

Заказ проекта

Оформить заказ Вы можете по телефону +7 (921) 202-42-37 
или заполнив форму ниже: